新聞中心
只需一次安裝就能讓您愛上新風,給您一個真正“會呼吸的家”來源:愛迪士

家有二寶的王太太和王先生新購置了上海綠地天呈的別墅,建筑面積200m2,層高3m,4室2廳,1廚、3衛、1地下室。王太太清楚室內空氣的污染程度最多可達到戶外的8倍,在第一套房屋裝修之初選擇安裝新風系統后,新別墅再一次選擇安裝中央新風系統,特別是新冠病毒爆發后,她更希望家中擁有健康的室內空氣同時摒棄甲醛、拒絕霧霾,特別是忙碌的老公和需要呵護的孩子們能更好地集中精力工作、學習,而不受季節或戶外溫濕影響。
Easy InspirAIR®Monet ECO 智嵐中央式智控熱回收新風凈化系統


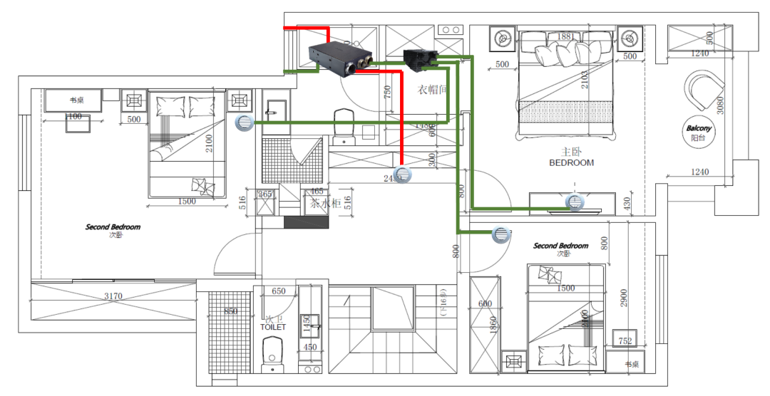
小迪綜合考慮王太太的戶型結構、通風需求等因素,建議王太太在二樓臥室區域和地下室采用愛迪士全新Easy InspirAIR®Monet ECO智嵐中央式智控熱回收新風凈化系統和明星產品Easy InspirAIR®Monet智睿中央式智控熱回收新風凈化系統,搭配無菌管道系統。Monet ECO主機安裝在地下室,根據新風設計原則定義新風路徑,避免新風與濁風氣流短路。送風口放置在兒童活動區、影音廳、書房區域,回風口放置在走廊,集中回風;Monet主機安裝在二樓主衛,送風口放置在三個房間內,回風口放置在走廊。既滿足了王太太的新風需求,又實現了新風的智能運行,根據室內空氣質量自動運行,真正給你一個“會呼吸的房屋”,讓我們一起來看看他們的新家吧。


小迪綜合考慮王太太的戶型結構、通風需求等因素,建議王太太在二樓臥室區域和地下室采用愛迪士全新Easy InspirAIR®Monet ECO智嵐中央式智控熱回收新風凈化系統和明星產品Easy InspirAIR®Monet智睿中央式智控熱回收新風凈化系統,搭配無菌管道系統。Monet ECO主機安裝在地下室,根據新風設計原則定義新風路徑,避免新風與濁風氣流短路。送風口放置在兒童活動區、影音廳、書房區域,回風口放置在走廊,集中回風;Monet主機安裝在二樓主衛,送風口放置在三個房間內,回風口放置在走廊。既滿足了王太太的新風需求,又實現了新風的智能運行,根據室內空氣質量自動運行,真正給你一個“會呼吸的房屋”,讓我們一起來看看他們的新家吧。

最終王太太和王先生對安裝的效果非常滿意,對愛迪士人員表現出的專業表達了贊賞,并表示會將愛迪士新風推薦給周圍的朋友與親戚。

